Shadowlawn 2 Story
Floor Plans
Shadowlawn 2 Story
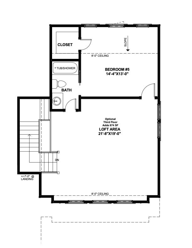
Our newest plan brings a modern Mid Century flavor to our coastal style. This plan allows for a blending of indoor and outdoor spaces... Also allows for a 3rd floor if more square footage is necessary on a smaller lot.



