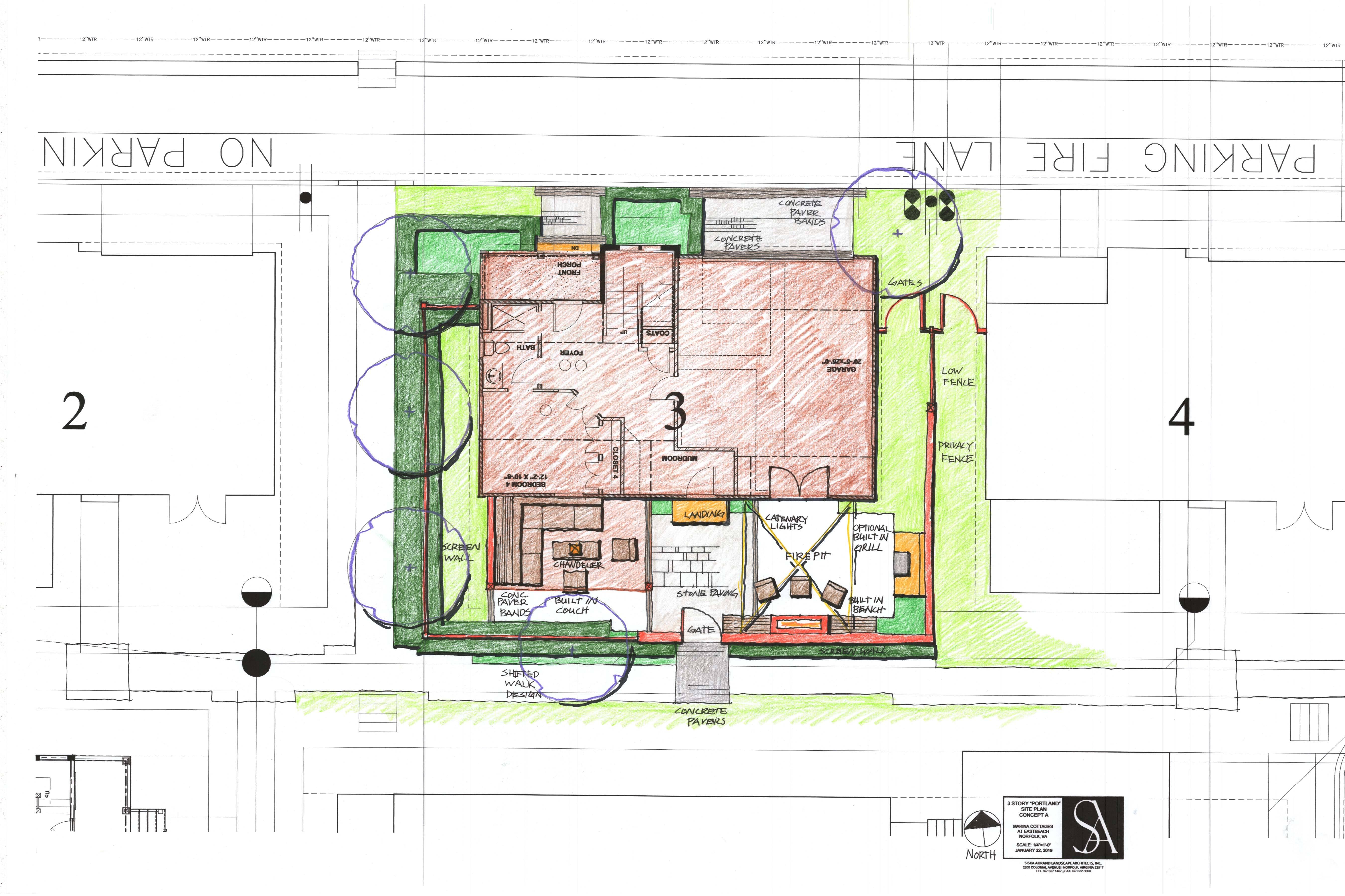
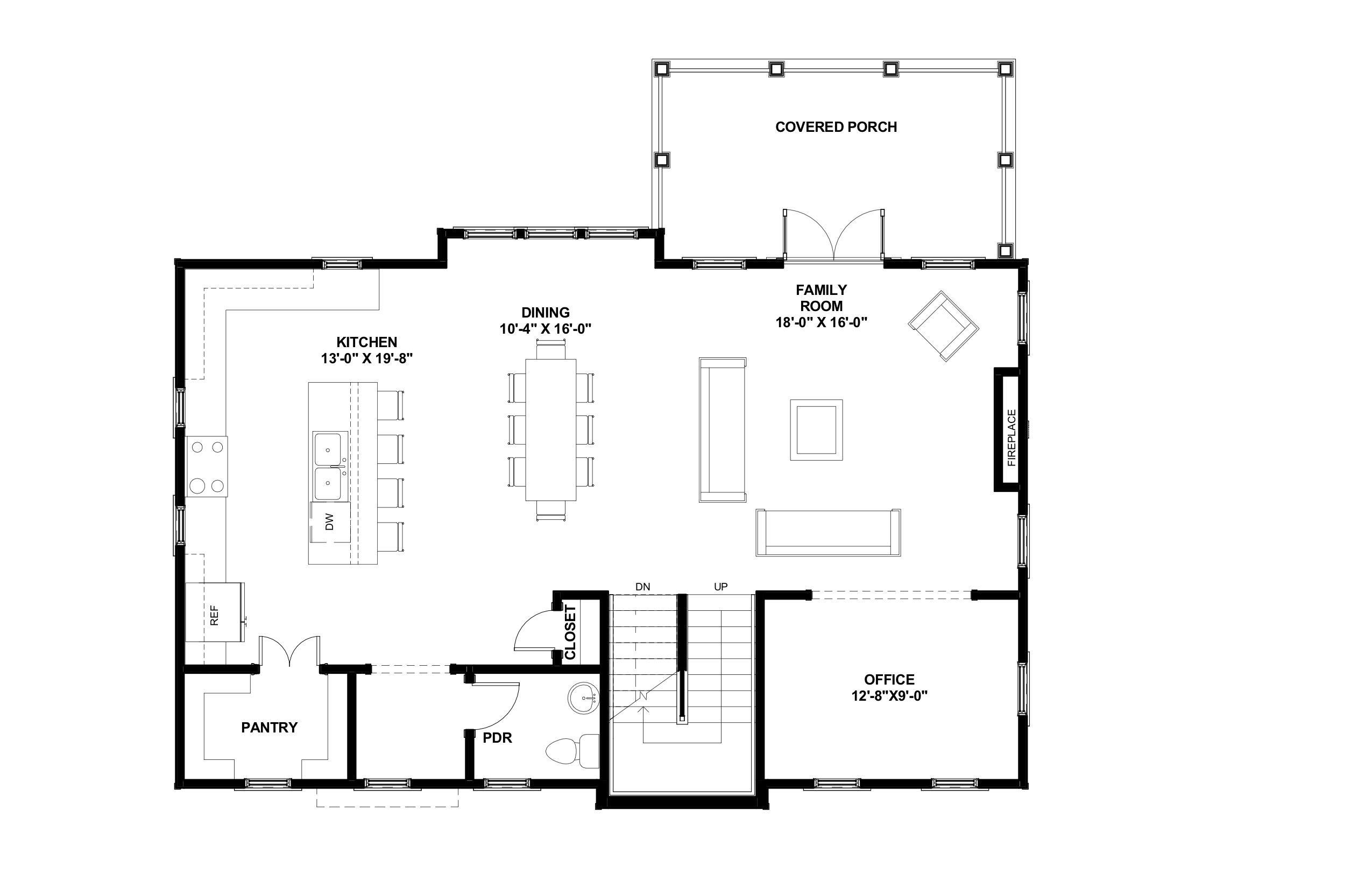
Portland
Floor Plans
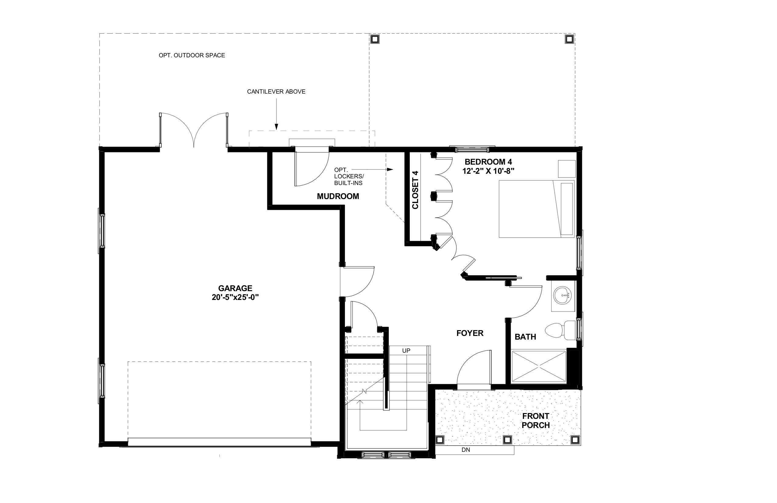
Portland
This plan is perfect for the beach life. First floor guest suite allows for roommates or in-laws. Main living area living area is nothing short of amazing boasting an amazing second floor porch extending the family living space right into the outdoors... Solid Raised Foundation



