Parade Of Homes The Smithfield House
Show Homes
Parade Of Homes The Smithfield House
Chesapeake, VA 23320
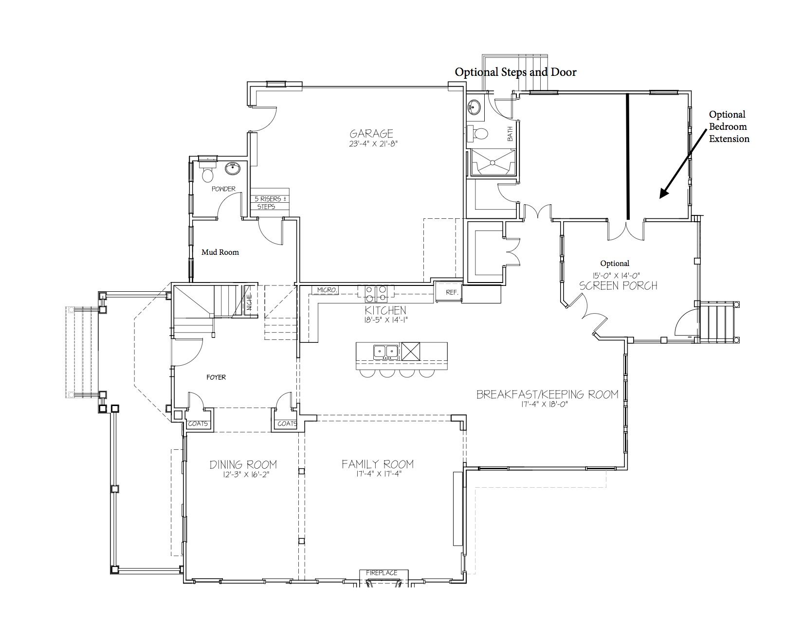
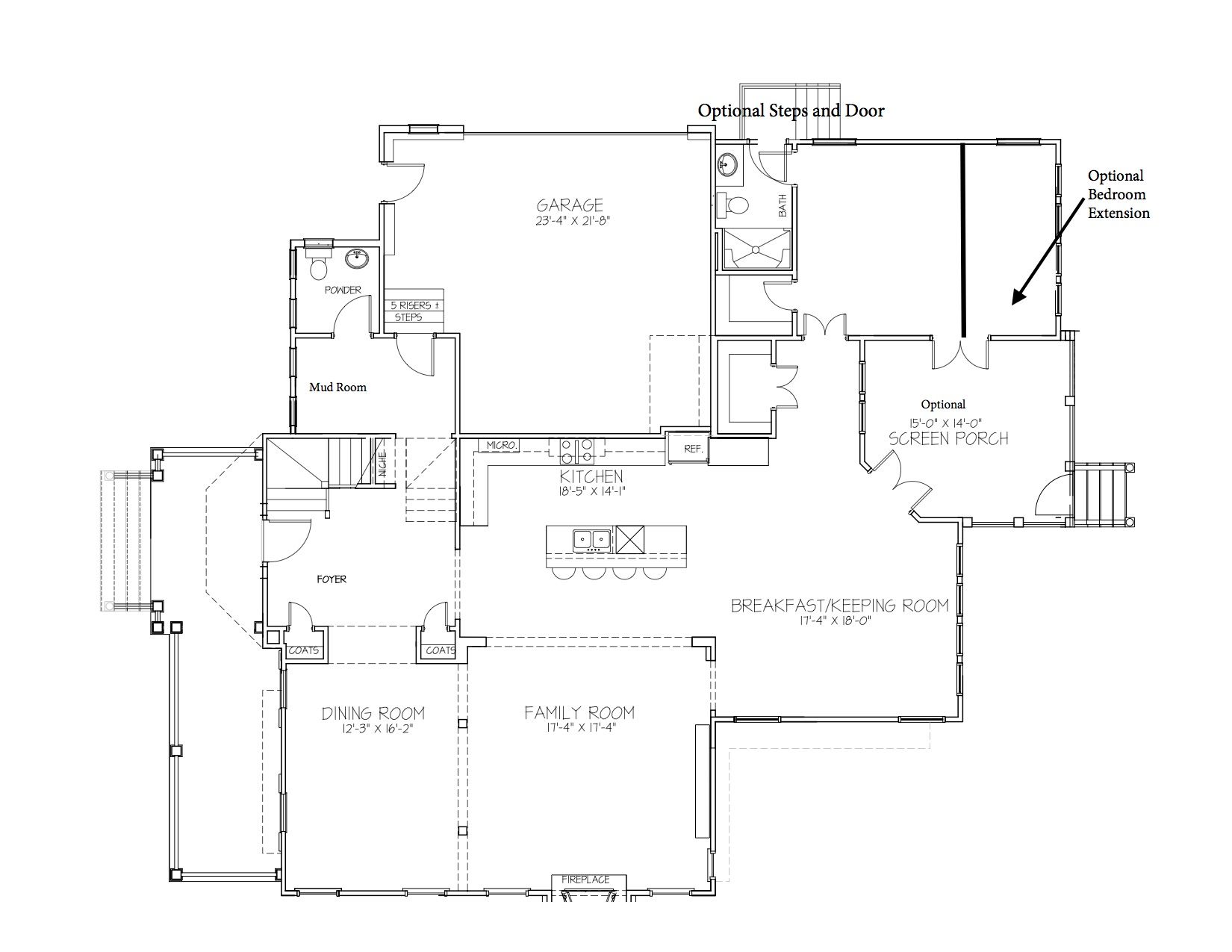
Turn of The Century Coastal Architecture All Season Porch leading to an Outdoor Paver Gallery Gourmet Chef’s kitchen with French Hood Stunningly Open Floor Plan 10' Ceilings Downstairs Elegant Display of Coastal Millwork



