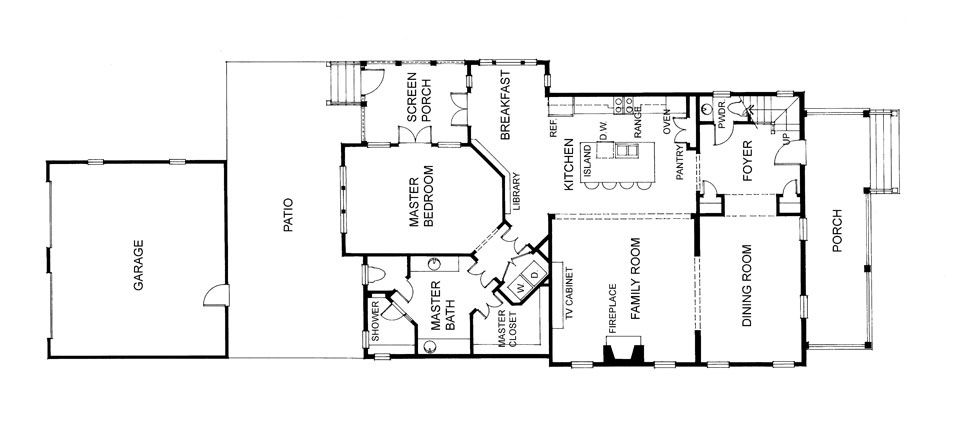
Homearama Blue River Idea House East Beach
Show Homes
Homearama Blue River Idea House East Beach
Chesapeake, VA 23320
Large Master Down, Kitchen Designed for the Cooking and Entertaining Enthusiast Master Retreat Features its Own Foyer, Screened Porch, Spa Shower,Beach Cottage



