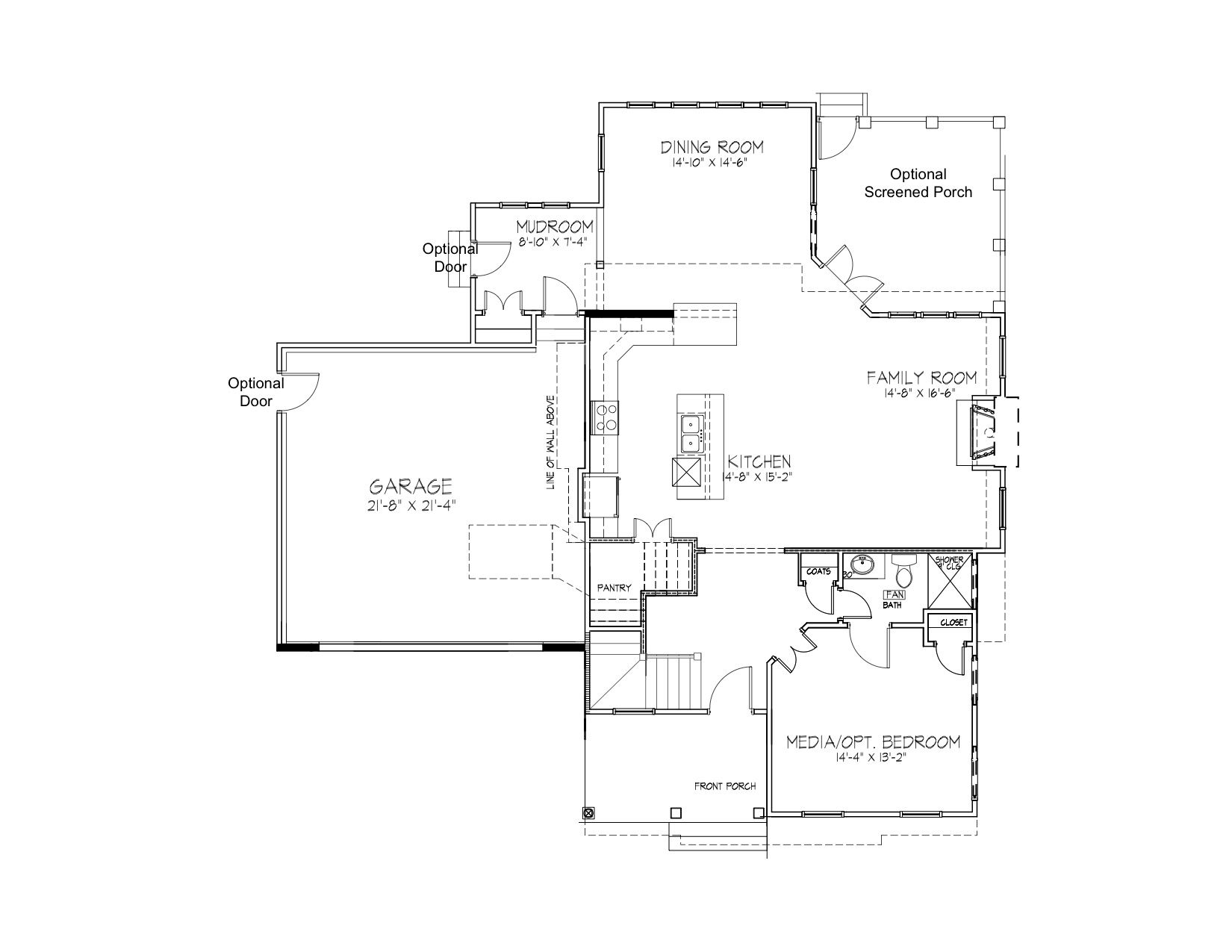
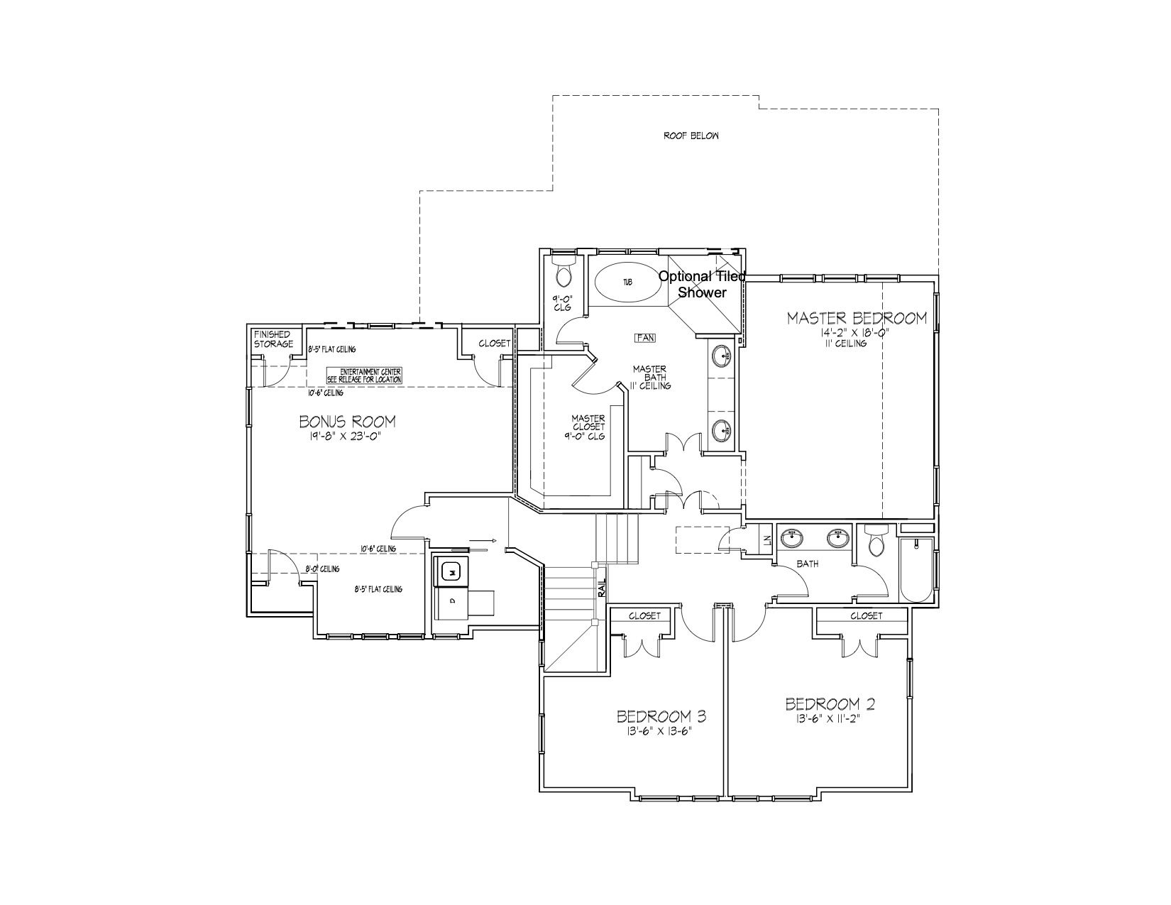
Cottage Ashland
Floor Plans
Cottage Ashland
A new plan which features the master located to the rear allowing for for enjoyment of views. Features our "Little Big House" lifestyle. Lives like a much larger home. Many custom floorplan options are pre drawn for your convenience. Plan size varies by communities
List of Services
-
Media▶️ Actual Walking Tour
Media



