Cottage Ashland
Plans Available
Cottage Ashland
705 Tulls Creek Road, Moyock, NC 27958
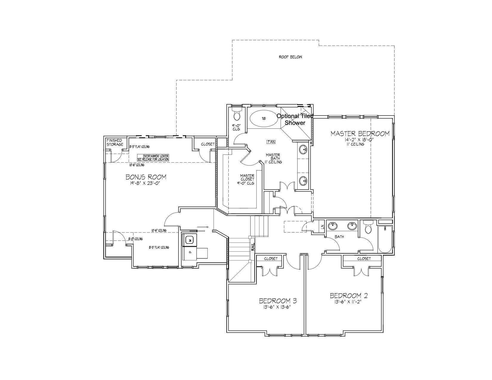
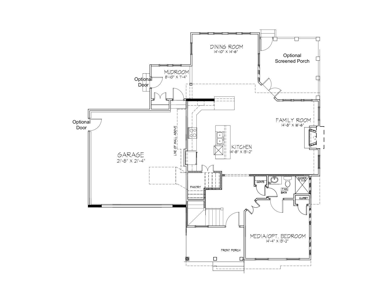
A new version of our Appomattox plan which features the master located to the rear allowing for for enjoyment of views. Features our "Little Big House" lifestyle with an amazing mudroom and kitchen Lives like a much larger home. Many custom floor plan options are pre drawn for your convenience.
List of Services
-
Media▶️ 3D Walkthrough
Media



