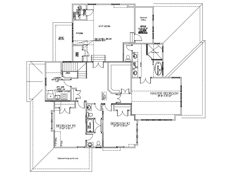
Bridgewater III
Hide
Bridgewater III
1424 Flora ct, Chesapeake, VA 23322
Our newest take on a popular plan giving us the livability of our York Lane show home in a more cost effective envelope. Culinary spaces, large porches, dual masters and so much more...



