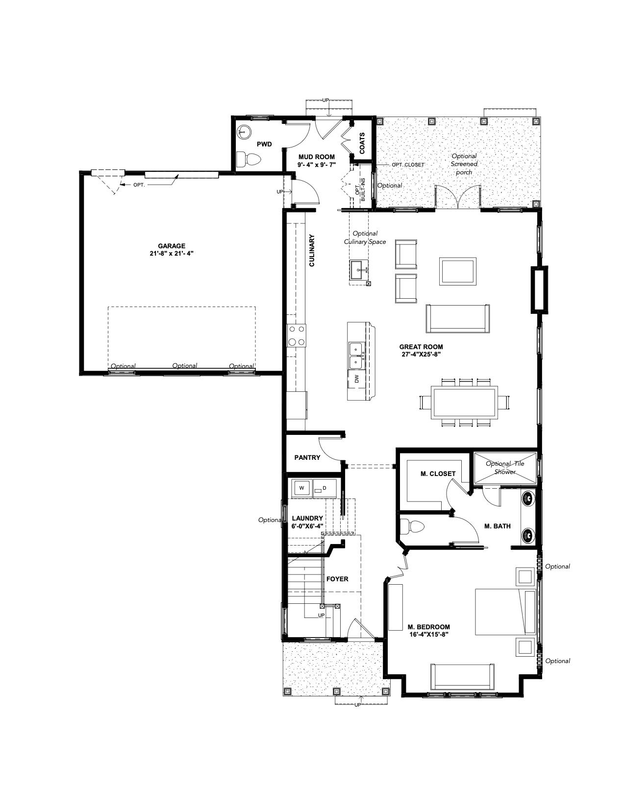
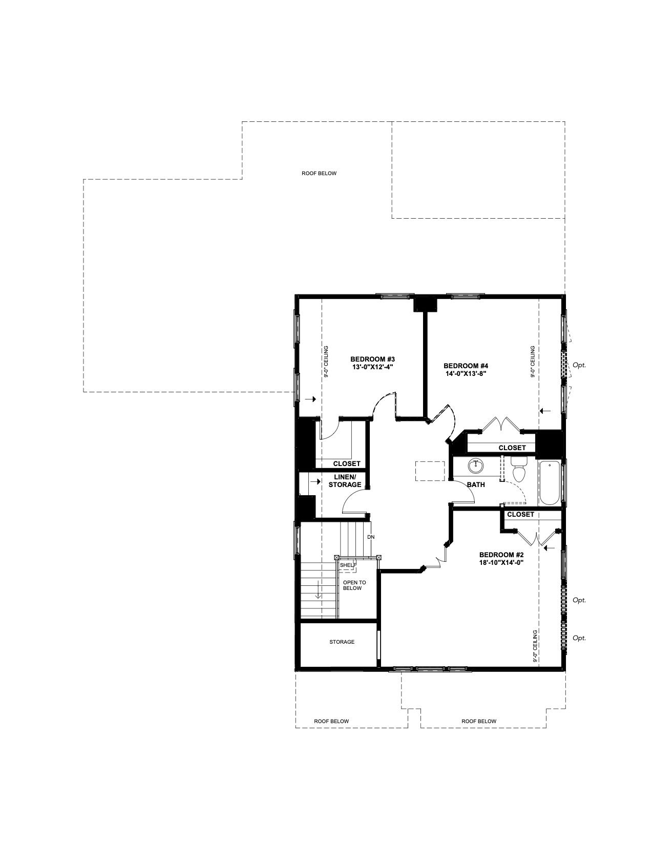
Bar Harbor With Attached Garage
Floor Plans
Bar Harbor With Attached Garage
**Bar Harbor With Attached Garage** (2520 sq. ft.) is a 1.5-story home with 4 bedrooms, 2.5 bathrooms and 2-car garage. Features include dining room, family room, fireplaces, green construction, guest room, media room, mud room, vaulted ceiling and walk-in closets.



