Amavida
Plans Available
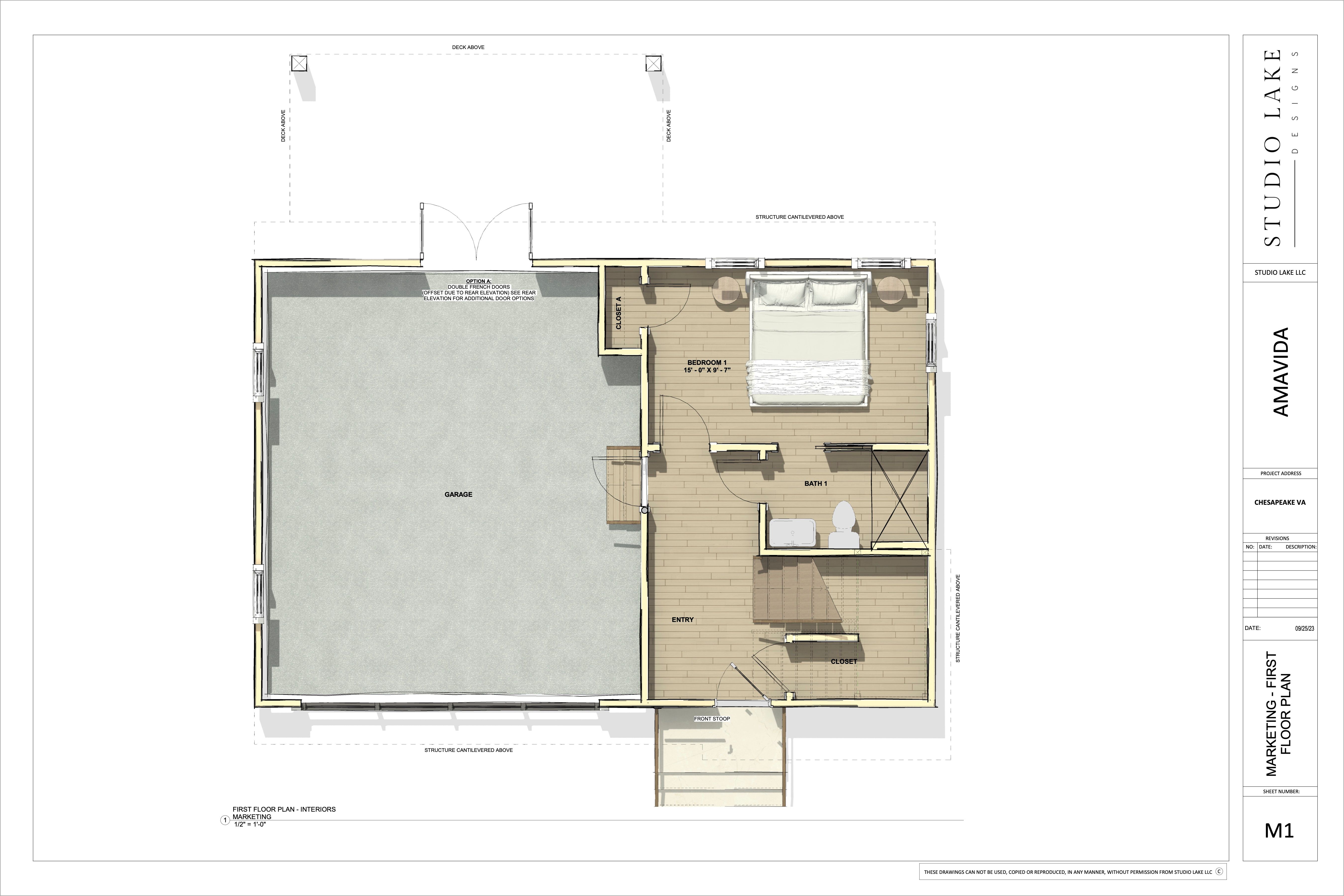
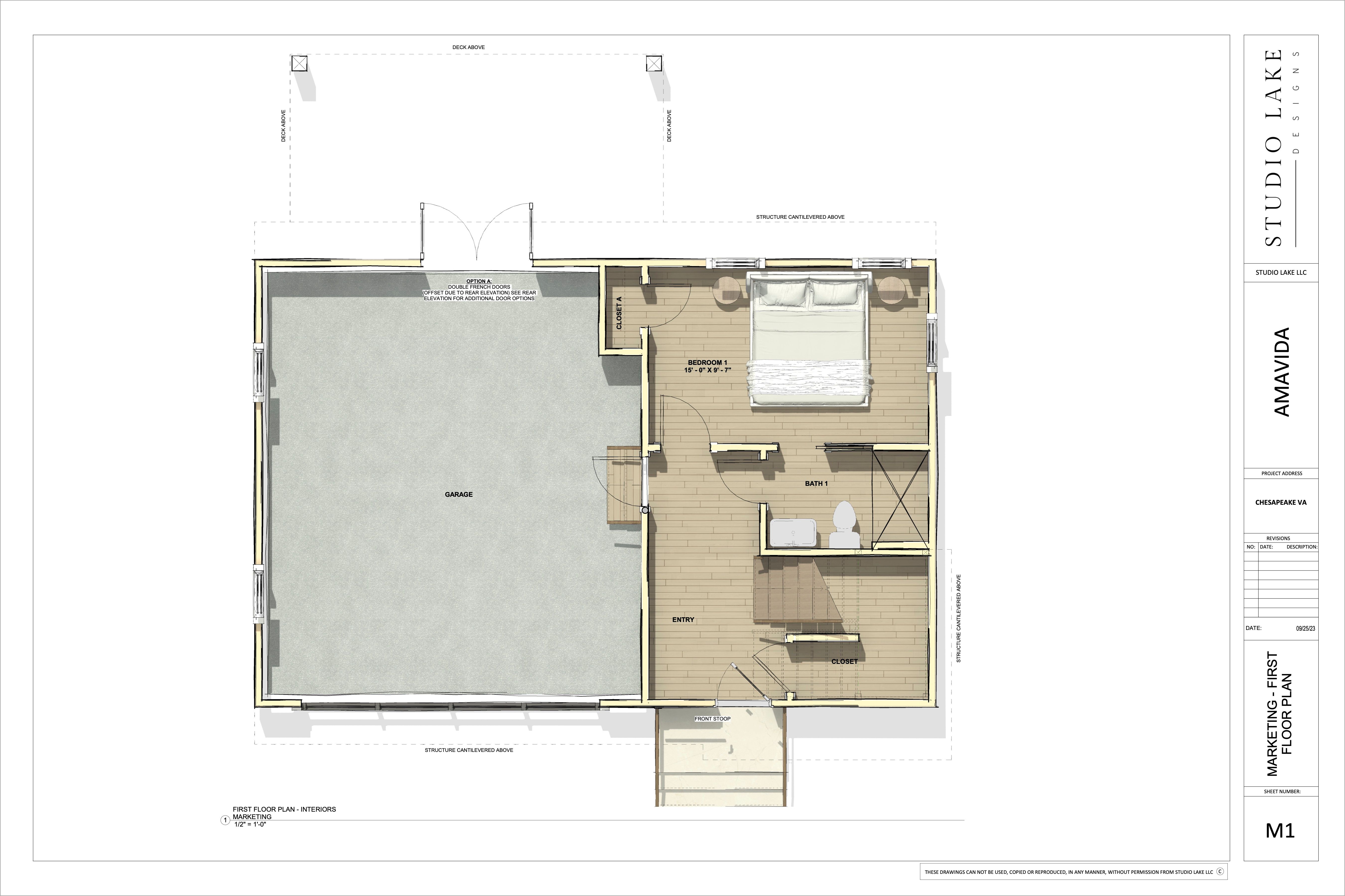
Amavida
1916 McCoy road, Chesapeake, VA 23323
This plan is one of a kind architecture inspired by Dutch and Spanish Architecture. This plan has luxurious entertaining and immersive ecological lifestyle built in. This home is designed to slide into nature and become part of it.
List of Services
-
Custom Amenities • Covered PatioCustom Amenities
• Deck
• Fireplaces
• Green Construction
• Mud Room
• Porch
• Vaulted Ceiling
• Walk-In Closets
-
Living Areas • Dining RoomLiving Areas
• Family Room
• Guest Room
• Office
• Study
-
Plan Amenities • First floor entertaining space adjacent to covered porch area perfect to serve as a pool house...Plan Amenities
• Large Floating Stair Tower
• Large second floor screened porch off of main living area



