Show Homes
St. Jude Dream Home Culpepper Landing
St. Jude Dream Home Culpepper Landing
Chesapeake, VA 23320
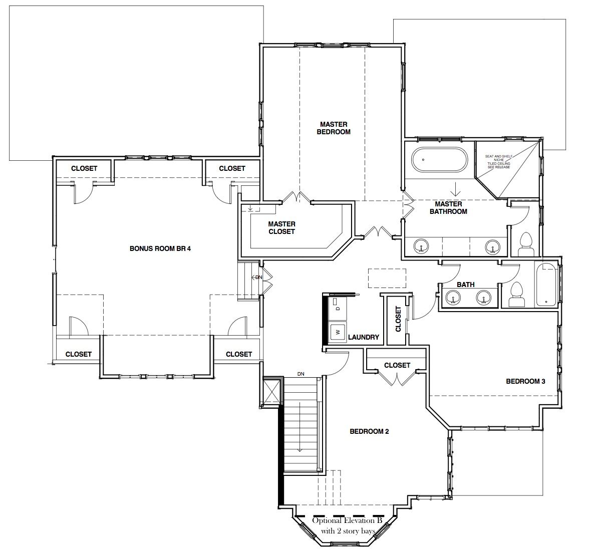
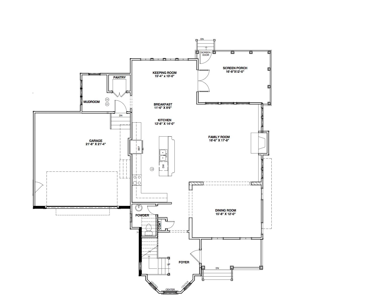
New plan , A combination of our Walnut and Bridgewater plans, expandable to meet almost any need.
Community Details
This is where we show our show homes...



