Show Homes
St. Jude Dream Home Ashville Park
St. Jude Dream Home Ashville Park
Chesapeake, VA 23320
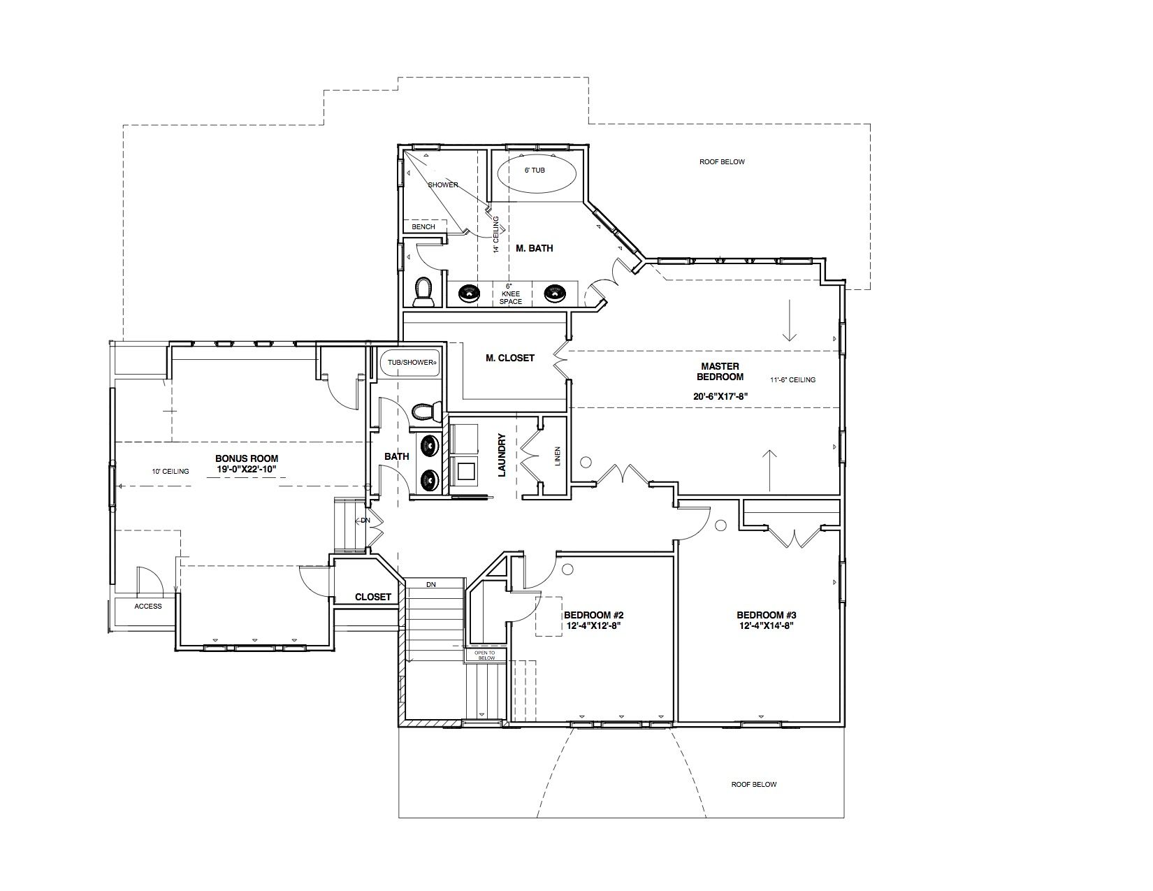
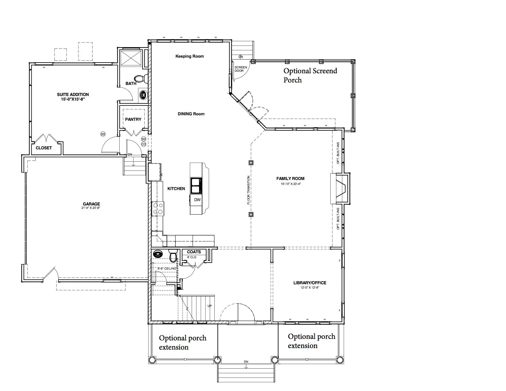
Barreled Roof On Front Porch All season Screened Porch Gourmet Chef’s kitchen Stunningly Open Floor Plan 10' Ceilings Downstairs 9' Ceilings Upstairs Custom Trim At Every Turn Master Planned Community Ashville Park
Community Details
This is where we show our show homes...



