Show Homes
Homearama Blue River Idea House East Beach
Homearama Blue River Idea House East Beach
Chesapeake, VA 23320
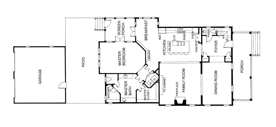
Large Master Down, Kitchen Designed for the Cooking and Entertaining Enthusiast Master Retreat Features its Own Foyer, Screened Porch, Spa Shower,Beach Cottage
Community Details
This is where we show our show homes...



