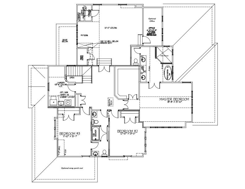
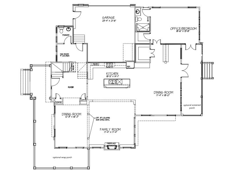
Floor Plans
Bridgewater III
Bridgewater III
Our newest take on a popular plan giving us the livability of our York Lane show home in a more cost effective envelope. Culinary spaces, large porches, dual masters and so much more...
GALLERY
Community Details



